Elektrik Projeleri Kategorisi | Görüntüleme: 64

Elektrik Projeleri

Elektrik proje örnekleri, kolon şemaları, aydınlatma planları, gerilim düşümü, kısa devre ve yükleme cetveli hesaplamaları.

Şantiye Pano Projesi

Şantiye Pano Projesi

Şantiye pano projesi; elektrik dağıtımı ve güvenliği için hazırlanmış, hızlıca...

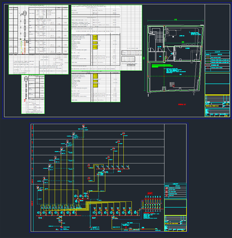
Fotovoltaik Enerji Kurulum Autocad Projesi

Fotovoltaik Enerji Kurulum Autocad Projesi

Fotovoltaik enerji kurulum projesi; güneş panel yerleşimi, bağlantı ve pano...

Fotovoltaik Panel Çiftliği Yerleşim Projesi

Fotovoltaik Panel Çiftliği Yerleşim Projesi

Fotovoltaik panel çiftliği yerleşim projesi; güneş enerji sistemleri için hazırlanmış...

Kapalı Spor Salonu Tam Set Proje

Kapalı Spor Salonu Tam Set Proje

Kapalı spor salonu elektrik projesi; zayıf ve kuvvetli akım çizimlerini...

Tüm Hesap ve Çizelgeleri ile Birlikte Topraklama Projesi

Tüm Hesap ve Çizelgeleri ile Birlikte Topraklama Projesi

Topraklama projesi; özdirenç hesapları, ölçüm raporları, yönetmelik bilgileri ve kolon...

Zemin + 4 Kat (5 Kat) Asansörlü Tam Set Bina Projesi

Zemin + 4 Kat (5 Kat) Asansörlü Tam Set Bina Projesi

Zemin + 4 katlı asansörlü bina projesi; elektrik tesisatı, topraklama,...

Tarımsal Sulama ve ENH Projesi

Tarımsal Sulama ve ENH Projesi

Tarımsal sulama ve ENH projesi; trafo şemaları, kompanzasyon, gerilim düşümü...

Alışveriş Merkezi Dükkan Elektrik Projesi

Alışveriş Merkezi Dükkan Elektrik Projesi

AVM dükkan elektrik projesi; aydınlatma, priz, klima, yangın, UPS ve...

Okul Kompanzasyon Panosu

Okul Kompanzasyon Panosu

10 kademeli 39 kVAr kompanzasyon panosu; okul projesine ait detaylı...

Örnek Kompanzasyon Proje Çizimi

Örnek Kompanzasyon Proje Çizimi

EPLAN ile hazırlanmış kompanzasyonlu ana dağıtım panosu; güç devresi ve...

Orta Gerilim Direk Trafo Donanım Detay Çizimleri

Orta Gerilim Direk Trafo Donanım Detay Çizimleri

Orta gerilim direk donanımları AutoCAD çizimleri; direk başı ekipmanlar, trafo...

Asansör Proje Hesaplamaları ve Çizim Detayları

Asansör Proje Hesaplamaları ve Çizim Detayları

6 katlı bina için AutoCAD ile hazırlanmış asansör hesaplama ve...